Page 287 - Manual Oficina XP 1000 14-16
P. 287
TRANSMISSION
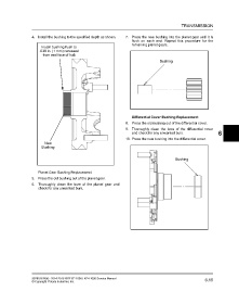
4. Install the bushing to the specified depth as shown. 7. Press the new bushing into the planet gear until it is
flush on each end. Repeat this procedure for the
remaining planet gears.
Differential Cover Bushing Replacement
8. Press the old bushing out of the differential cover.
9. Thoroughly clean the bore of the differential cover
and check for any unwanted burs. 6
10. Press the new bushing into the differential cover.
Planet Gear Bushing Replacement
5. Press the old bushing out of the planet gear.
6. Thoroughly clean the bore of the planet gear and
check for any unwanted burs.
9926816 R06 - 2014-2016 RZR XP 1000 / XP4 1000 Service Manual 6.19
© Copyright Polaris Industries Inc.

